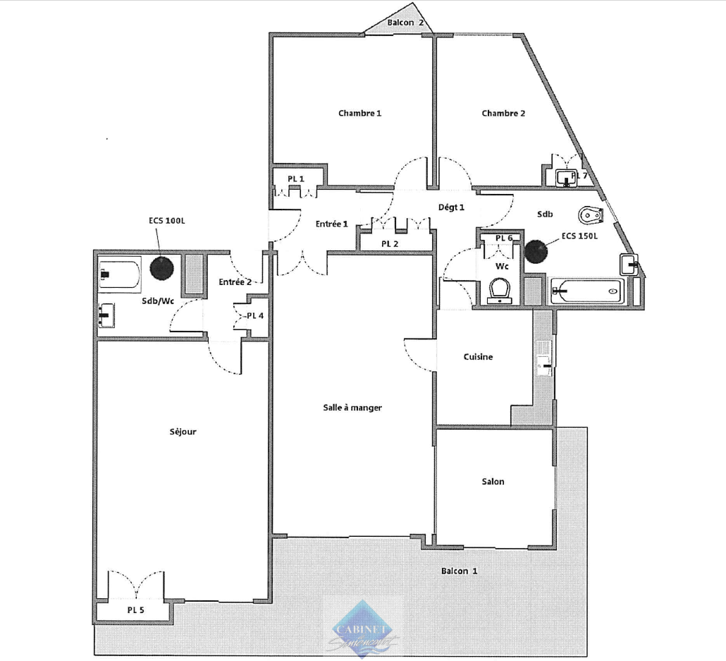
Abbeville (80100) AVEC ASCENSEUR - T4 de 107m²- 3 BALCONS - GARAGE - 2 CAVES
Cet appartement traversant de 107m² avec 4 pièces principales en résidence avec ascenseur pourra être mis en configuration 3 chambres + séjour, ou 2 chambres + séjour double suivant vos besoins. Il dispose de nombreux atouts en plus de son exposition sud ouest offrant une jolie vue du haut de ses 4 étages: 3 balcons, 2 salles de bains, 2 WC, 1 garage, 2 caves. Volets électriques, fibre, placards, chauffage électrique, nouveau DPE en cours. Issu de la réunification d'un T3 et d'un studio vous pourrez aussi le remettre aisément dans sa configuration d'origine si besoin. Contactez Thomas CADIX: O6 76 6O 17 O5
-
Commerces et santé
-
Loisirs
-
Ecoles
-
Transports
-
Pratique
Les informations recueillies sur ce formulaire sont enregistrées dans un fichier informatisé par La Boite Immo agissant comme Sous-traitant du traitement pour la gestion de la clientèle/prospects de l'Agence / du Réseau qui reste Responsable du Traitement de vos Données personnelles.
La base légale du traitement repose sur l'intérêt légitime de l'Agence / du Réseau.
Elles sont conservées jusqu'à demande de suppression et sont destinées à l'Agence / au Réseau.
Conformément à la loi « informatique et libertés », vous disposez des droits d’accès, de rectification, d’effacement, d’opposition, de limitation et de portabilité de vos données. Vous pouvez retirer votre consentement à tout moment en contactant directement l’Agence / Le Réseau.
Consultez le site https://cnil.fr/fr pour plus d’informations sur vos droits.
Si vous estimez, après avoir contacté l'Agence / le Réseau, que vos droits « Informatique et Libertés » ne sont pas respectés, vous pouvez adresser une réclamation à la CNIL.
Nous vous informons de l’existence de la liste d'opposition au démarchage téléphonique « Bloctel », sur laquelle vous pouvez vous inscrire ici : https://www.bloctel.gouv.fr
Dans le cadre de la protection des Données personnelles, nous vous invitons à ne pas inscrire de Données sensibles dans le champ de saisie libre.
Ce site est protégé par reCAPTCHA, les Politiques de Confidentialité et les Conditions d'Utilisation de Google s'appliquent.
Détails des diagnostics énergétiques
Maison de 98m² à 10 minutes de EU
