Abbeville (80100) LOCAL PROFESSIONNEL 180m2 Abbeville Hyper-Centre
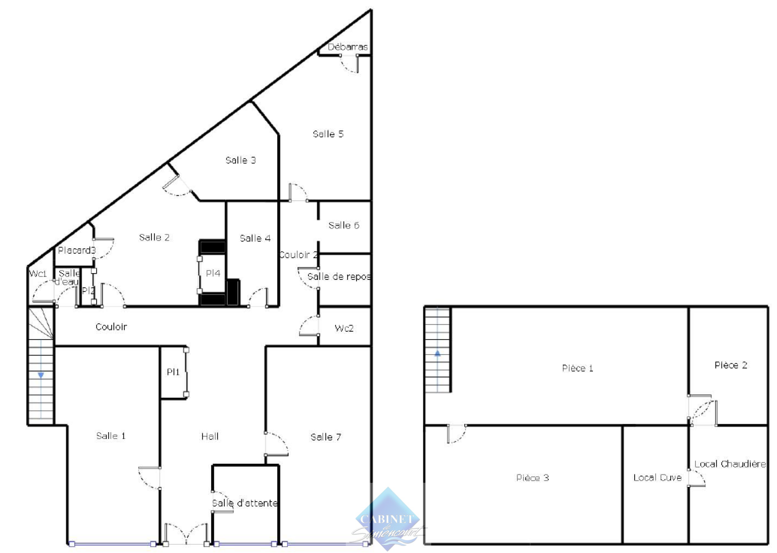
Ce local d'activité en bon état situé en hyper-centre proche des parkings, offre une grande surface en RDC de 180m2 et + de 100m2 en sous sol. Très large vitrine en double vitrage, de 11.50m la lumière intérieure est également procurée par 2 puits de lumières. Chauffage gaz de ville (DPE classé D), Foncier de 3.348. euros à la charge du locataire. Entrée pouvant aisément se transformer en accès PMR. Possède VMC, 2 sanitaires dont 1 PMR, kitchenette. Charges de copro à la charge du locataire:500.€/an. Bail authentique 3/6/9. Dépôt de garantie: 4.400.€. Contactez Thomas CADIX: O6 76 6O 17 O5
Montant estimé des dépenses annuelles d'énergie de ce logement pour un usage standard est compris entre 2 200 € et 2 800 € . 2020 étant l'année de référence des prix de l'énergie utilisés pour établir cette estimation.
-
Commerces et santé
-
Loisirs
-
Ecoles
-
Transports
-
Pratique
* HC : Hors charges
Les informations recueillies sur ce formulaire sont enregistrées dans un fichier informatisé par La Boite Immo agissant comme Sous-traitant du traitement pour la gestion de la clientèle/prospects de l'Agence / du Réseau qui reste Responsable du Traitement de vos Données personnelles.
La base légale du traitement repose sur l'intérêt légitime de l'Agence / du Réseau.
Elles sont conservées jusqu'à demande de suppression et sont destinées à l'Agence / au Réseau.
Conformément à la loi « informatique et libertés », vous disposez des droits d’accès, de rectification, d’effacement, d’opposition, de limitation et de portabilité de vos données. Vous pouvez retirer votre consentement à tout moment en contactant directement l’Agence / Le Réseau.
Consultez le site https://cnil.fr/fr pour plus d’informations sur vos droits.
Si vous estimez, après avoir contacté l'Agence / le Réseau, que vos droits « Informatique et Libertés » ne sont pas respectés, vous pouvez adresser une réclamation à la CNIL.
Nous vous informons de l’existence de la liste d'opposition au démarchage téléphonique « Bloctel », sur laquelle vous pouvez vous inscrire ici : https://www.bloctel.gouv.fr
Dans le cadre de la protection des Données personnelles, nous vous invitons à ne pas inscrire de Données sensibles dans le champ de saisie libre.
Ce site est protégé par reCAPTCHA, les Politiques de Confidentialité et les Conditions d'Utilisation de Google s'appliquent.
Détails des diagnostics énergétiques
Montant estimé des dépenses annuelles d'énergie de ce logement pour un usage standard est compris entre 2 200 € et 2 800 € . 2020 étant l'année de référence des prix de l'énergie utilisés pour établir cette estimation.
