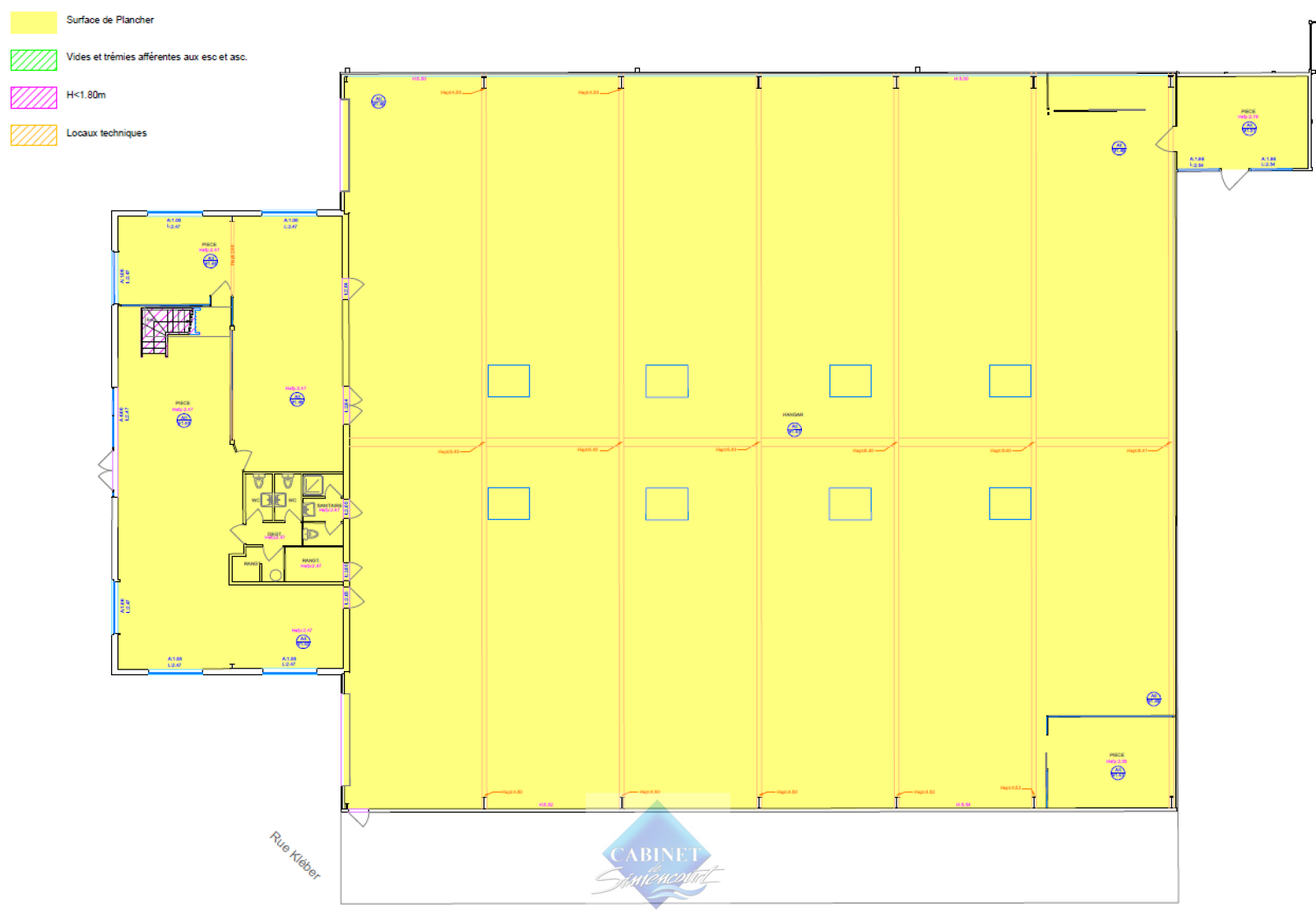
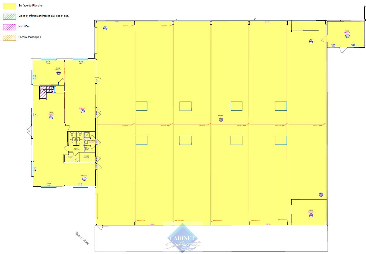
Woincourt (80520) LOCAL PROFESSIONNEL 1.550m² WOINCOURT
Local d'activité dans le Vimeu industriel, sur axe fréquenté (D925 & D19) et à 10kms de l'A28, de 1.550m² au total sur parcelle de 6.500m² env. Constitué d'un hall de 1.150m² sans poteaux, hauteur sous poutre de 5.5 à 6.9m, charge au sol 2t/m², et de 400m² de bureaux et locaux sociaux (200m² en RDC + 200m² en étage). 2 grandes portes sectionnelles de plain-pied, voirie lourde avec aire de retournement, parkings VL & PL. Ossature métallique, toiture bac acier isolée. Contactez Thomas CADIX: O6 76 6O 17 O5
-
Commerces et santé
-
Loisirs
-
Ecoles
-
Transports
-
Pratique
Les informations recueillies sur ce formulaire sont enregistrées dans un fichier informatisé par La Boite Immo agissant comme Sous-traitant du traitement pour la gestion de la clientèle/prospects de l'Agence / du Réseau qui reste Responsable du Traitement de vos Données personnelles.
La base légale du traitement repose sur l'intérêt légitime de l'Agence / du Réseau.
Elles sont conservées jusqu'à demande de suppression et sont destinées à l'Agence / au Réseau.
Conformément à la loi « informatique et libertés », vous disposez des droits d’accès, de rectification, d’effacement, d’opposition, de limitation et de portabilité de vos données. Vous pouvez retirer votre consentement à tout moment en contactant directement l’Agence / Le Réseau.
Consultez le site https://cnil.fr/fr pour plus d’informations sur vos droits.
Si vous estimez, après avoir contacté l'Agence / le Réseau, que vos droits « Informatique et Libertés » ne sont pas respectés, vous pouvez adresser une réclamation à la CNIL.
Nous vous informons de l’existence de la liste d'opposition au démarchage téléphonique « Bloctel », sur laquelle vous pouvez vous inscrire ici : https://www.bloctel.gouv.fr
Dans le cadre de la protection des Données personnelles, nous vous invitons à ne pas inscrire de Données sensibles dans le champ de saisie libre.
Ce site est protégé par reCAPTCHA, les Politiques de Confidentialité et les Conditions d'Utilisation de Google s'appliquent.
