Sailly-Flibeaucourt (80970) EXCLUSIVITÉ: MAISON DE CAMPAGNE AUX BEAUX VOLUMES
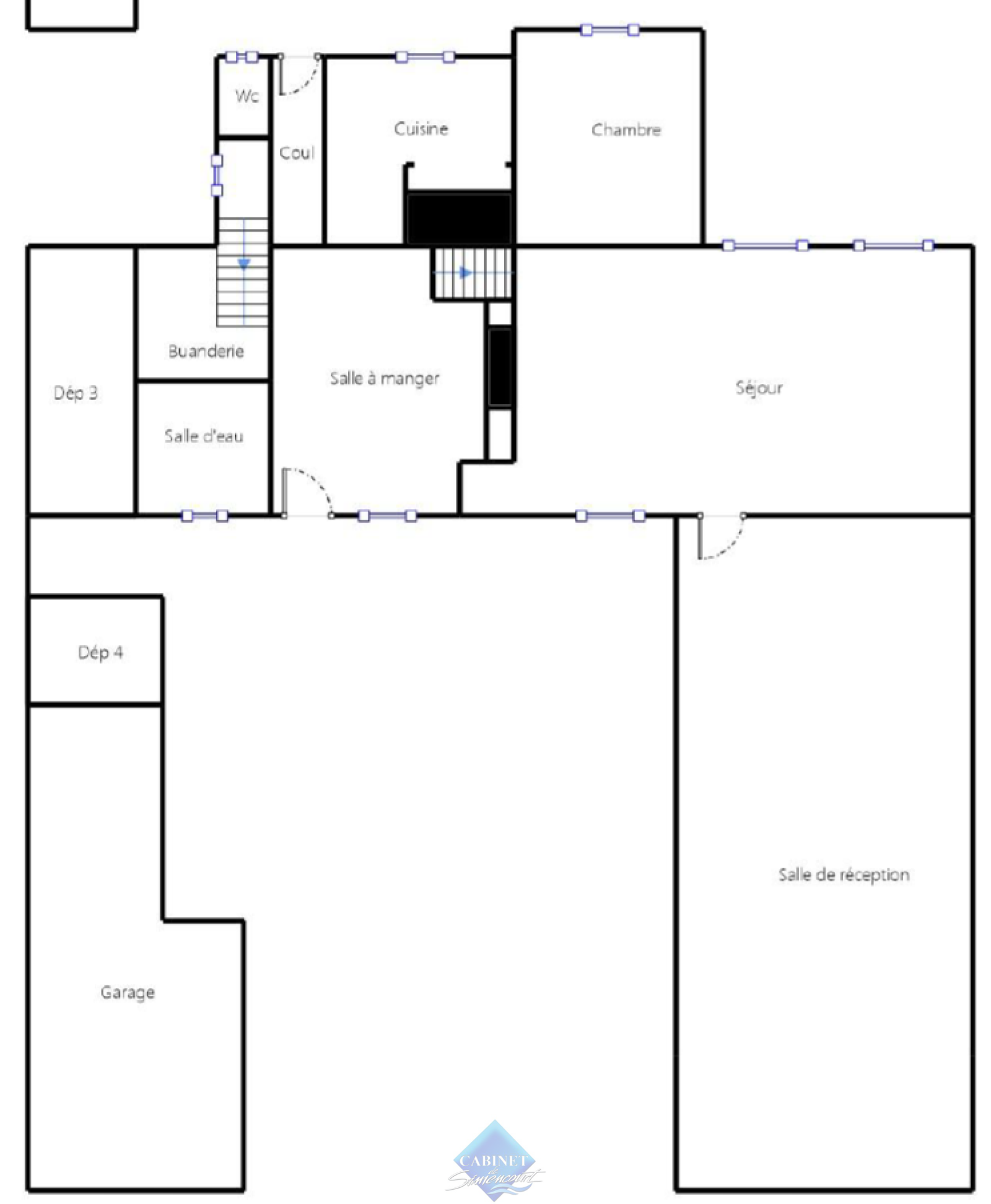
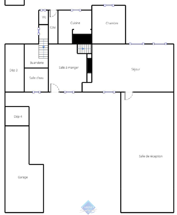
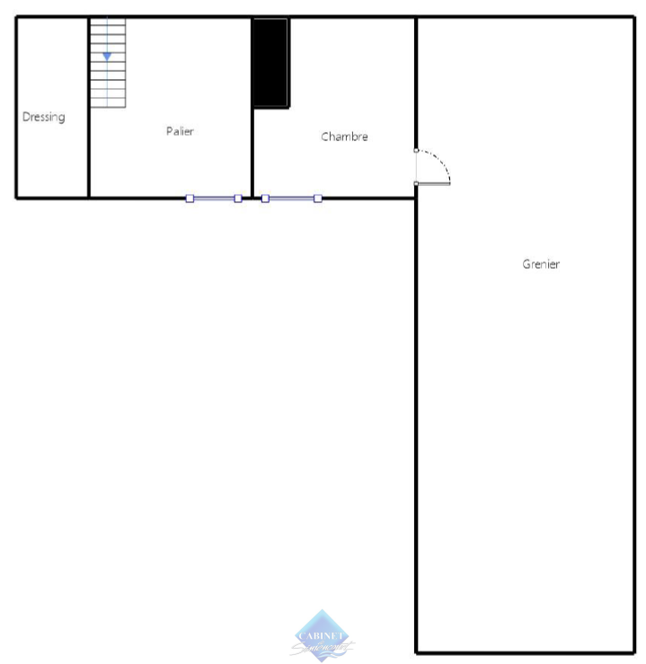
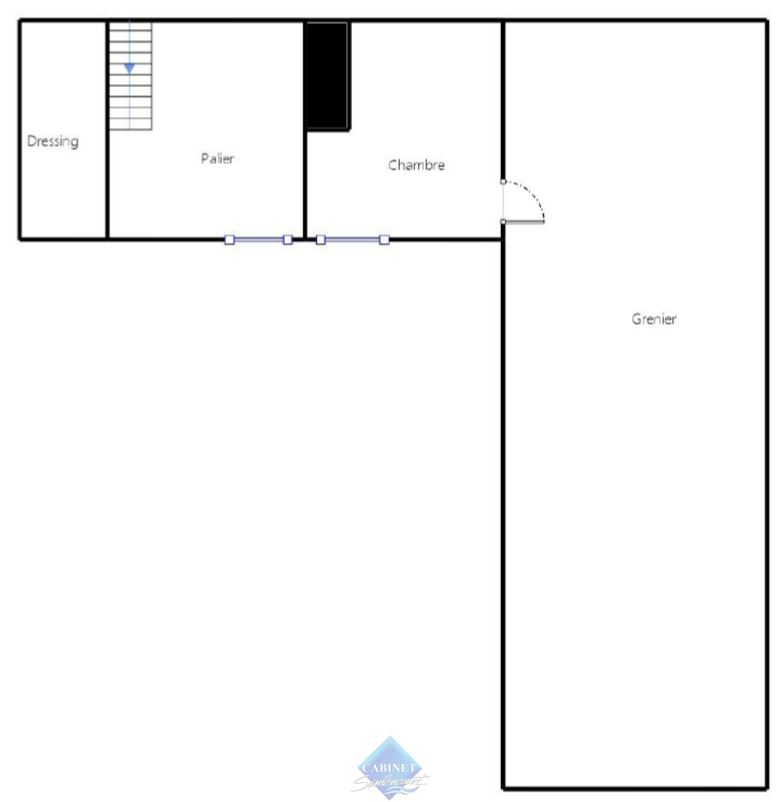
Cette maison située à Sailly-Flibeaucaourt (10/15min d'Abbeville) est un ancien café dont la salle de réception, de près de 80m², est attenante à la maison et peut ainsi être transformée en surface habitable, tout comme son grenier juste au dessus. La maison possède en sus 5 pièces principales: salle à manger, cuisine séparée, grand séjour de 42m², 1 chambre au RDC ainsi que la salle d'eau. A l'étage: 1 chambre palière + 1 chambre. Garage et diverses dépendances sur l'avant et sur l'arrière dont les toitures seront à revoir. Caves. Vitrages mixtes. Tout à l'égout. Les toitures de la maison et de l'ancien bar sont récentes, ainsi que la pompe à chaleur (consommations globales de 2.400 euros/an). T.Foncière: 900.€. Contactez Thomas CADIX: O676 6O1 7O5
Les informations sur les risques auxquels ce bien est exposé sont disponibles sur le site Géorisques
Montant estimé des dépenses annuelles d'énergie pour un usage standard est compris entre 3 500 € et 4 780 € . Prix moyens des énergies indexés sur les années 2021, 2022 et 2023 (abonnements compris).
-
Commerces et santé
-
Loisirs
-
Ecoles
-
Transports
-
Pratique
Les informations recueillies sur ce formulaire sont enregistrées dans un fichier informatisé par La Boite Immo agissant comme Sous-traitant du traitement pour la gestion de la clientèle/prospects de l'Agence / du Réseau qui reste Responsable du Traitement de vos Données personnelles.
La base légale du traitement repose sur l'intérêt légitime de l'Agence / du Réseau.
Elles sont conservées jusqu'à demande de suppression et sont destinées à l'Agence / au Réseau.
Conformément à la loi « informatique et libertés », vous disposez des droits d’accès, de rectification, d’effacement, d’opposition, de limitation et de portabilité de vos données. Vous pouvez retirer votre consentement à tout moment en contactant directement l’Agence / Le Réseau.
Consultez le site https://cnil.fr/fr pour plus d’informations sur vos droits.
Si vous estimez, après avoir contacté l'Agence / le Réseau, que vos droits « Informatique et Libertés » ne sont pas respectés, vous pouvez adresser une réclamation à la CNIL.
Nous vous informons de l’existence de la liste d'opposition au démarchage téléphonique « Bloctel », sur laquelle vous pouvez vous inscrire ici : https://www.bloctel.gouv.fr
Dans le cadre de la protection des Données personnelles, nous vous invitons à ne pas inscrire de Données sensibles dans le champ de saisie libre.
Ce site est protégé par reCAPTCHA, les Politiques de Confidentialité et les Conditions d'Utilisation de Google s'appliquent.
Détails des diagnostics énergétiques
Montant estimé des dépenses annuelles d'énergie pour un usage standard est compris entre 3 500 € et 4 780 € . Prix moyens des énergies indexés sur les années 2021, 2022 et 2023 (abonnements compris).
APPARTEMENT TOUT CONFORT CENTRE VILLE
